QUATTRO LOCALI CON DOPPI SERVIZI
Riferimento: Q6
Rif. Q6 Sacra Famiglia a Cesano Maderno‚ a pochi passi dal verde del Parco Collodi‚ nasce una nuova residenza moderna in classe energetica A4‚ in fase di ultimazione‚ con consegna prevista per dicembre 2025.
Il progetto prevede diverse soluzioni abitative studiate per garantire il massimo comfort‚ bassi consumi energetici e un’elevata qualità della vita.
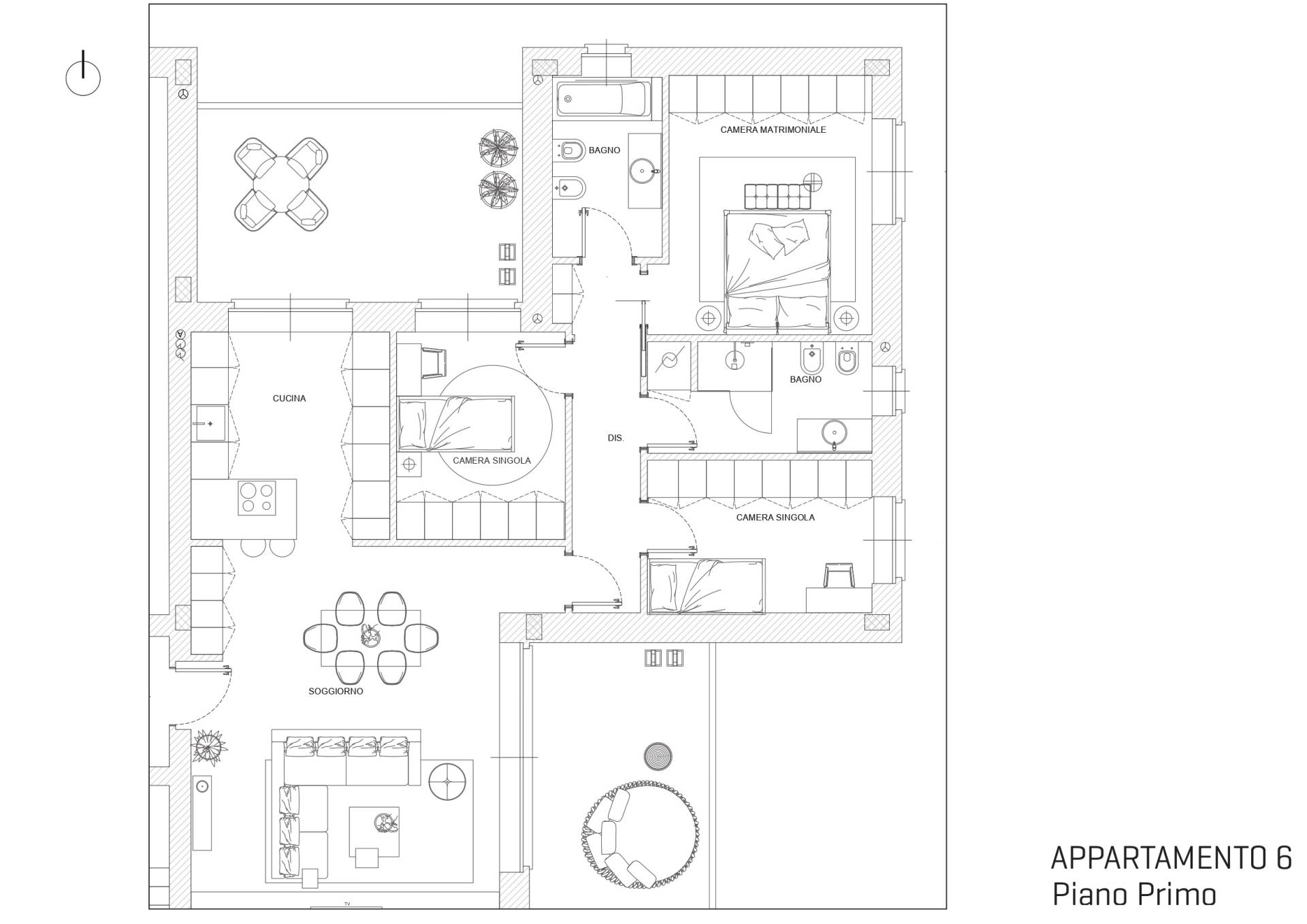
Proponiamo in vendita un quadrilocale al primo piano‚ così composto: Ingresso su ampia zona giorno luminosa‚ cucina a vista‚ camera matrimoniale‚ due camere singole‚ doppi servizi e n°2 terrazzi coperti per un totale di 29 mq‚ accessibili dalla zona giorno‚ dalla cucina e da una delle camere. Cantina nel prezzo e possibilità acquisto box
(La presente scheda non costituisce forma di contratto‚ le informazioni qui contenute sono da ritenersi del tutto indicative e non potranno essere utilizzate come parte integrante di un eventuale contratto di vendita. Inoltre non vincola in alcun modo la società.)






251009065320.jpg)
251009065320.jpg)
251009065320.jpg)
251009065321.jpg)
251009065321.jpg)
251009065321.jpg)
251009071924.jpg)








